Архитектурная мастерская ТЕРЕМ ПРОЕКТ

Проектирование в Санкт-Петербурге и Ленинградской области

Тел: +7(901)305-26-99   Email: terem.spb@mail.ru

ООО "Терем Проект"

является членом Саморегулируемой организации Ассоциация "Проектировщики оборонного и энергетического комплексов"

(СРО "АПОЭК").

Коттедж

Коттедж

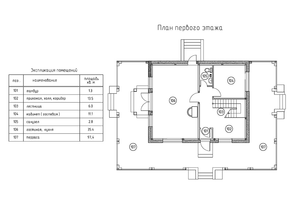
МО Приморское, п. Озерки. Проект двухэтажного коттеджа без подвала выполнен на существующей на участке монолитной ж/б плите, часть площади плиты использована для организации крытой террасы с трех сторон дома. На первом этаже гостиная, объединенная с кухней, кабинет, санузел и холл с лестницей на второй этаж. На втором этаже две спальни, санузел с ванной, холл с лестницей. Конструкция – фундамент – существующая на участке монолитная ж/б плита, дом каркасный – каркас выполнен из стальных прокатных и электросварных профилей. Наружные стены полистиролбетон 300 мм. Стропильная система – деревянные стропильные ноги по стальному каркасу, утепление кровли минераловатные плиты 200 мм, покрытие кровли – металлочерепица.