Архитектурная мастерская ТЕРЕМ ПРОЕКТ

Проектирование в Санкт-Петербурге и Ленинградской области

Тел: +7(901)305-26-99   Email: terem.spb@mail.ru

ООО "Терем Проект"

является членом Саморегулируемой организации Ассоциация "Проектировщики оборонного и энергетического комплексов"

(СРО "АПОЭК").

Коттедж

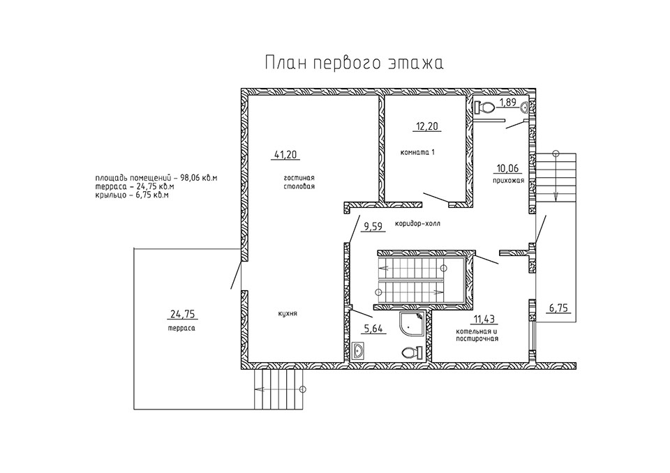
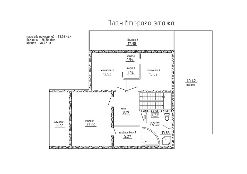
Коттедж

Приморский район Спб, Шувалово. Двухэтажный дом без подвала. На первом этаже гостиная и столовая, объединенная с кухней, гостевая комната, прихожая, два санузла, котельная с постирочной, лестница на второй этаж. К гостиной примыкает открытая терраса. На втором этаже три спальни с гардеробными, большой санузел с ванной, два балкона. Второй этаж сдвинут в плане и консольно нависает над террасой первого этажа. Дом объединен общим навесом для стоянки двух автомобилей с хозблоком для хранения садового инвентаря. Конструкция фундамента винтовые сваи на которых установлен каркас дома и террасы. Дом деревянный каркасный, утепление наружных стен минераловатные плиты 200 мм. Наружная отделка – обшивка светлой и обожженной доской покрытой лаком. Кровля плоская (уклон 2 градуса), утепление кровли минераловатные плиты 200 мм, покрытие кровли два слоя изопласта по цементностружечной плите. Площадь первого этажа 98,0 кв.м, второго этажа 83,0 кв.м, терраса 25,0 кв.м, балконы 28,0 кв.м.